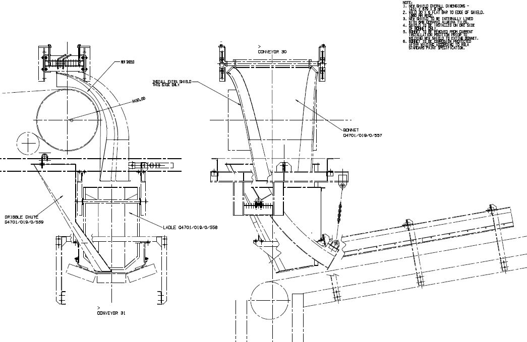
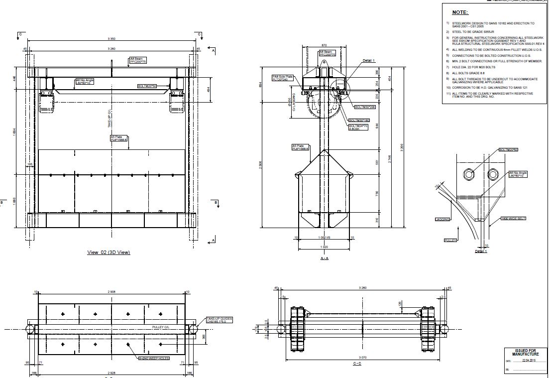
Design Packages - 2D Drafting
RULA utilise the 2D Cad drafting packages for all concept design and for a wide range of Bulk Materials handling applications
CAD software for 2D drafting can help you:
•Draft designs more quickly, without using stencils and technical drawing instruments
•Develop site plans, refine concepts, sketch technical drawings, and share your ideas •Customize templates and drawings more precisely •Collaborate with colleagues and clients using other compatible 2D CAD software products•Create, send, and receive compatible data files when using DWG file formats to collaborate with clients and associates
AutoCAD and CADDIE software is used







